The Measured House

The Measured House

Thoughtful residential design focused on proportion, flow, and the way people truly live.

Request a Consultation

Design That Begins With Listening

The Measured House focuses on residential spatial planning. Projects begin with understanding how a home is actually used and translating that into thoughtful layouts and practical drawings.

How I Work

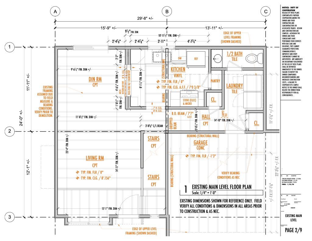
Most projects begin with a walkthrough consultation followed by an in-depth discovery phase. To ensure total accuracy, I personally document the home using hand-measurements for complex structures or LiDAR scanning for simpler ones, which can be a great cost-saver for smaller budgets. I photograph and map out the areas directly impacted by the remodel—including the floors above and below—to accurately track framing, bearing conditions, and mechanical or electrical systems. This allows us to confidently plan for removing walls or adding structural beams to meet your design goals while ensuring every change is practical and structurally sound.

Sample Work

Contact

Phone: 303-665-1428

Email: welcome@themeasuredhouse.com